Wettbewerb Gemeindezentrum Vomp – 2. Anerkennung
Link zum Beitrag: architekturwettbewerb.at
Mitarbeiter: Arch. Dipl.-Ing. Ingrid Schwärzler, Melanie Frauenhoffer Bsc, Dipl.-Ing. Johannes Gabriel, Eva Schwärzler
ENTWURFSIDEE
Die Anordnung von Gemeindeamt, Bibliothek und Nahversorger als einzelne, klar ablesbare Gebäude stellen neue Orte des dörflichen Geschehens und der Begegnung dar. Fußläufige Verbindungswege von Norden nach Süden und Westen tragen zur Belebung der bestehenden und neuen Dorfstruktur bei.
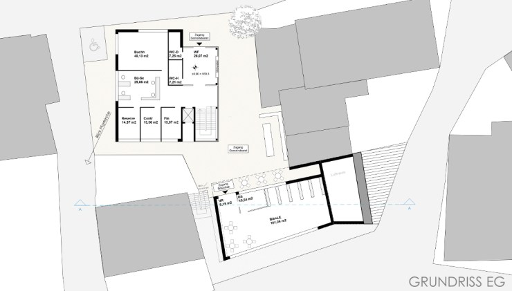
Die Situierung des neuen Gemeindeamtes ist auf die Baufluchten der benachbarten Gebäude abgestimmt. Die Entscheidung zu einem viergeschossigen Baukörper gewährleistet die Freistellung des Gebäudes in der heterogen vorhandenen Baustruktur. Vom Zugang zum Gemeindeamt bis zur neuen Bibliothek erstreckt sich ein vom Durchzugsverkehr geschützter neuer Platz, der zum Verweilen und Lesen einlädt und den Blick auf das ortsprägende Kirchenensemble freigibt. Eine Außentreppe führt von hier zum ein Stockwerk tiefer liegenden Nahversorger. Dieser ist barrierefrei von Westen erschlossen, 9 TiefgaragenStellplätze befinden sich unmittelbar daneben. Von Süden führt eine neue fußläufige Verbindung zum Geschäft. Eine LKWStandspur parallel zur Straße ermöglicht die gefahrlose Zulieferung. Die Einfahrt zur Tiefgarage im 2. UG erfolgt ebenfalls von Süden.
INNERE ERSCHLIESSUNG
Ein Stiegenhaus verbindet alle Geschosse, der Aufzug gewährleistet den barrierefreien Zugang zu allen Bereichen. Die zusätzlichen Ausgänge im EG und 1. UG ermöglichen den Betrieb außerhalb der Öffnungszeiten des Gemeindeamtes.
WIRTSCHAFTLICHKEIT
Durch die quadratische Grundform gewährleistet der Kubus ein günstiges Außenhüllen/VolumenVerhältnis und in Kombination mit einer hochgedämmten Außenhülle einen optimierten Heizwärmebedarf und geringe Betriebskosten.

